PRAKTYCZNY 69


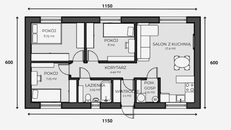
Powierzchnia zabudowy: 69 m2

Pomieszczenia: 2 pokoje lub WERSJA II 3 pokoje,  łazienka, pomieszczenie gospodarcze, salon z kuchnią, wiatrołap

Technologia: murowany / szkieletowy 

WERSJA II

Przewijanie do góry
ZADZWOŃ 724 657 326